The next phase of The Boro development in Tysons
Thursday, Mar 11, 2021
The Washington Business Journal recently published an article discussing the next phase of The Boro development in Tysons. Akridge, one of the region’s… Read more »
Fairfax County Accepts Rezoning Application for Housing and Retail Around The Boro
Wednesday, Mar 03, 2021
The Tysons Reporter recently published an article on The Meridian Group’s mixed-use development, The Boro, and its plans for an expansion along Westpark… Read more »
Land Use Attorney Jonelle M. Cameron Named Shareholder
Thursday, Feb 25, 2021
Walsh, Colucci, Lubeley & Walsh is pleased to announce that Jonelle M. Cameron has been named a Shareholder of the firm effective… Read more »
Fairfax County Board Approves Interim Uses for Key Tysons Site
Tuesday, Feb 23, 2021
In 2014, the Dittmar Company received rezoning approval for its 5.3 acre property at the corner of Leesburg Pike and Westpark Drive… Read more »
Virginia Adopts Permanent Standard in Response to COVID-19
Friday, Feb 12, 2021
The Virginia Safety and Health Codes Board recently voted to approve a permanent safety and health standard (“Permanent Standard”) requiring employers to… Read more »
Senator Jeremy McPike Celebrates the Life of Peter Michael Dolan, Jr.
Thursday, Feb 11, 2021
On February 11, 2021, the Virginia State Senate, at the behest of Sen. Jeremy McPike (Senate District 29), passed the following Resolution… Read more »
Stonebrook Rezoning Approved in Westfields
Wednesday, Jan 27, 2021
Image Source: Stanly Martin Companies Originally set amidst a stream-laden landscape of rolling fields, and woodlands, creating an idyllic suburban environment,… Read more »
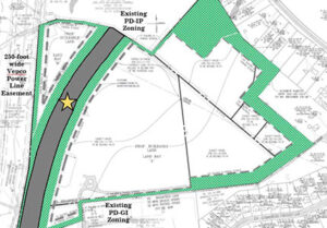
Stafford County Board of Supervisors Approves Burns Corner
Wednesday, Jan 27, 2021
On December 15, 2020, the Stafford County Board of Supervisors unanimously approved a commercial development known as Burns Corner which is located… Read more »
In Memoriam: Pete Dolan
Thursday, Jan 07, 2021
On January 5, Walsh, Colucci, Lubeley & Walsh, P.C. lost a beloved member of its family, Peter M. Dolan, managing shareholder of… Read more »








