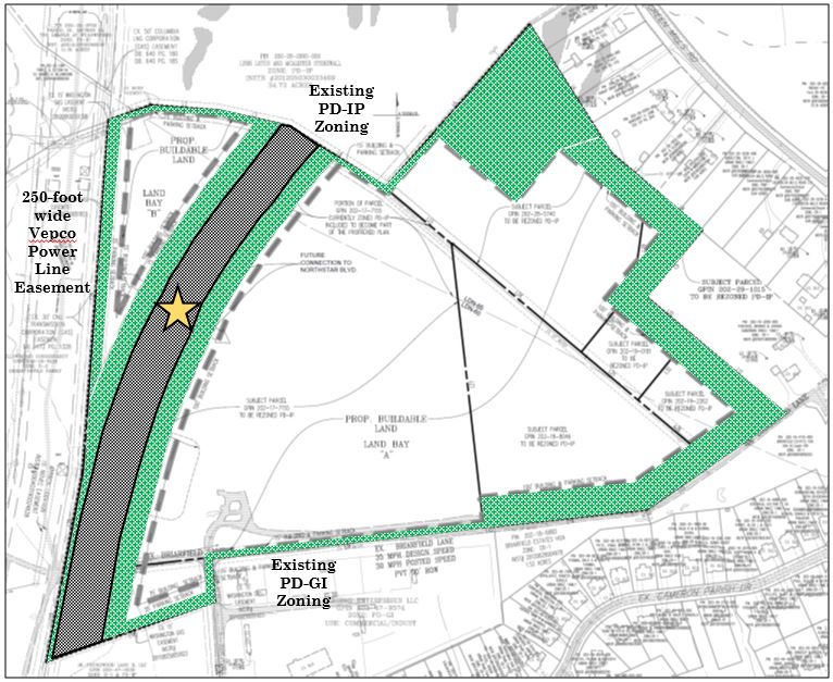
Walsh Colucci assisted the applicant, JK Land Holdings, in the recent approval of a rezoning and special exception application for a 71.5-acre technology park permitting up to 3,117,154 square feet of technology and industrial uses in Loudoun County. The JK Technology Park #1 is located just north of Route 50 immediately adjacent to the future extension of Northstar Boulevard. In fact, over 11 acres of the site will be set aside to accommodate the future construction of Northstar Boulevard, a major north-south roadway in Loudoun County.
The rezoning encountered many challenges on its path to approval. The recently adopted 2019 General Plan does not support non-residential uses at this location. Rather, low density residential uses were preferred by county staff despite a third of the site being located within the LDN 65 airport noise contour, which pursuant to the Revised 1993 Loudoun County Zoning Ordinance does not permit any new residential lots. Additionally, neighboring residents from by-right communities bordering the airport noise contours voiced their concerns about the application.
The applicant addressed these concerns by hosting multiple community meetings and agreeing to proffer commitments that mitigate the impacts of the application. Specifically, the applicant agreed to place over 19 acres of nearby land into conservation easement; limit the timing of the development’s construction to align with the construction of Northstar Boulevard; reroute development traffic away from adjacent neighborhoods; install environmentally beneficial development practices such as permeable pavement, low impact development water filtration features, and underground cisterns; and agree to preserve ample on-site open space, including the railroad bed of the former Manassas Gap Railroad.
Through its willingness to work with County representatives and neighbors, the applicant was able to find common ground and gain near unanimous support for the JK Technology Park #1 from the Loudoun County Board of Supervisors on October 20, 2020.

Image Source: Urban, Ltd.






